扎根大地的住宅,KiKi ARCHi 在中国昆明
项目:扎根大地的住宅
建筑师: KiKi ARCHi
地点:中国昆明
面积:5683平方英尺(地块),3821平方英尺(建筑)
年份:2023
摄影:北京瑞景摄影
扎根大地的住宅,KiKi ARCHi 在中国昆明
云南昆明是一个风景优美的城市,气候宜人、生态自然,吸引了众多居民。KiKi ARCHi 设计的这座新双层住宅位于著名的高尔夫度假区。业主是一位高尔夫爱好者,他希望这个家能提供一个放松的场所,并满足家庭成员的各项需求,同时最大限度地享受自然。经过一年的设计和改造,原本的一层建筑变成了一座风格独特的两层度假住宅,坐落在森林与樱花树之间的山坡上。

土地有温度。用夯土建造的房屋冬暖夏凉,得益于粘土的存在。扎根在温暖土地上的植物秋季收获果实。埋藏于地下酒窖中的美酒发酵时间更长…土地的依赖与理解积累了许多生活智慧,这也启发了 KiKi ARCHi。经过研究和分析,建筑师团队提出了一个大胆的想法:让住宅深入大地,基于原始地基及地形高差,将一层建筑改造为两层结构而不破坏主体结构。这一概念令业主感到惊喜,因为它不仅增加了使用面积,也带来了更丰富功能和视觉层次。

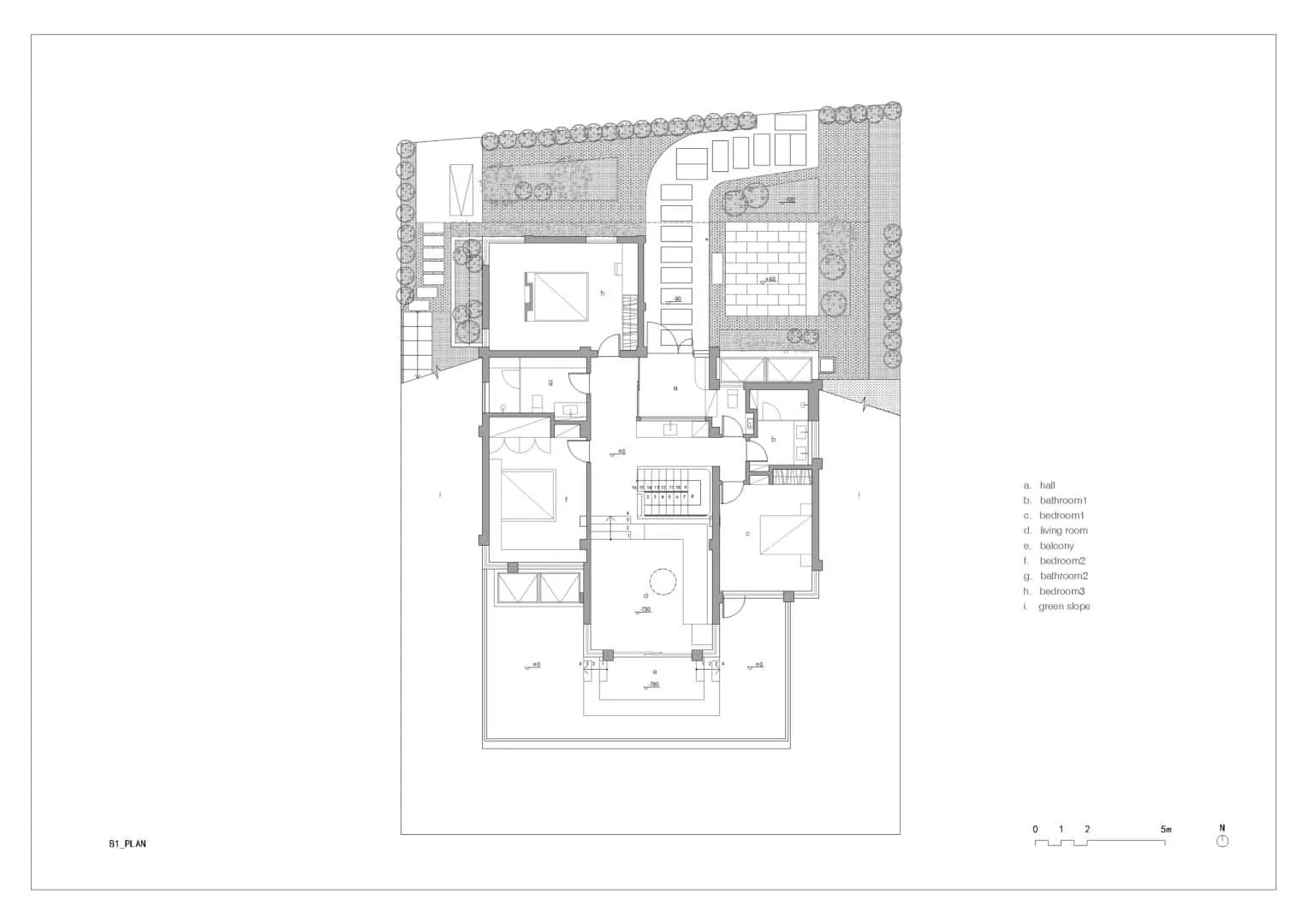
空间转变从基础柱开始。为了规划新的地下室,设计团队研究了十多个可见的柱子,包括它们的位置、高度和稳定性。新层位于3.6米到2.9米之间,利用山坡的高差实现。前部设有餐厅、休闲区和健身区,拥有最佳视野;厨房、浴室和储藏室则位于后部略低的位置。玻璃作为建筑外壳,引入大量阳光。圆形钢柱的加入解决了支撑问题,并为从上层突出的露台提供了结构基础。具有防水和吸附性能的硅藻土粘土从外墙延伸至内部空间,展现出坚硬质感与精致微调色调的美感。因此,原本粗糙的斜坡变成一个“玻璃盒子”,充满日常生活的气息,呼吸着草木的气息。

建筑结构赋予地下室自由灵活的视觉效果,室内设计体现了对探索、神秘与原创“深入地下”的追求。休闲区自然形成的区域,得益于巧妙的高度变化和独特的柱子设计,仿佛体现土壤的可塑性。厨房倾斜侧窗与浴室热水源的弧形光线营造出洞穴感。在明暗交替间,温馨的空间呈现出与一楼完全不同的对比。

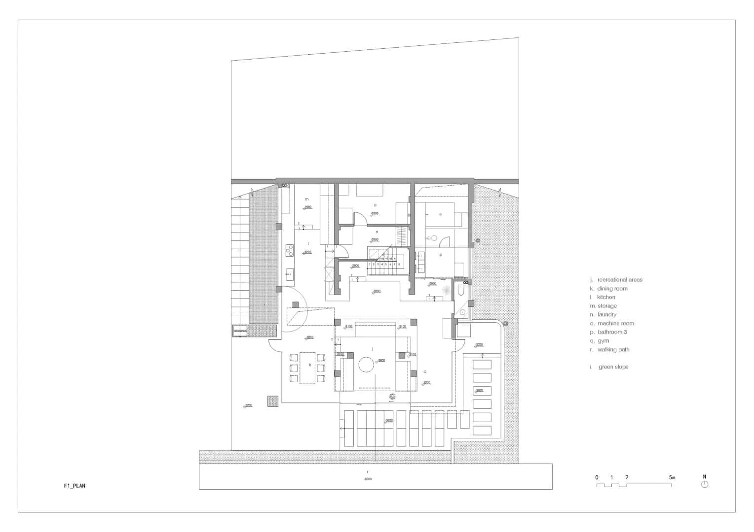
温暖的木质区域是通往一楼的楼梯平台,可见白色的钢结构与精细扶手形成优美的视觉线条。如同“嵌套的木盒子”般向上攀登,顺着光线指引到达一楼的小客厅。这里空间色彩开始变化,变得明亮温暖。入口区、水吧、下沉式客厅和露台沿轴线布置,两侧设有三间私人卧室。当地火山岩砖从外部路径延伸至入口处,弱化内外空间的界限。酒吧墙面的小窗连接前后庭院景观。楼梯平台上的低矮栏杆兼具装饰与实用功能。所有这些令人印象深刻的细节使住宅更加引人入胜。

改造完成后外部空间扩大了三倍。步行道、露台、小花园及多种植物环绕住宅,提供更多亲近自然的机会并形成多个入口路径。精心铺设的砾石、板岩及外部木地板因材料不同,在每个区域营造不同的停留感,特别设计的排水系统在雨天会形成小型瀑布。植物向下扎根向上生长——正如这座住宅,深深扎入大地,并以温暖的家庭氛围滋养更富足的生活。
- 项目介绍与图片由 Sideview 提供
图纸







Need a renovation specialist?
Find verified professionals for any repair or construction job. Post your request and get offers from local experts.







