里约之家 / LABarq / 墨西哥
里约之家由LABarq设计,位于墨西哥萨尔蒂亚戈-德克雷塔罗的梯形地块上,并采用V型布局策略,将日常生活空间朝向受保护的内院和后花园。建筑在城市私密性与明亮开放之间取得平衡,框景深远并协调公共空间和私人空间之间的流动。
V型住宅,面向自然
设计围绕景观展开,在中央庭院中形成生活核心。街道立面保持克制内敛,而花园一侧则融入光线、全景和丰富的内外连接。
照片 © 阿里安娜·波洛
照片 © 阿里安娜·波洛空间组织与建筑策略
LABarq将住宅分为两个朝向庭院的翼楼:
- 公共翼楼:客厅、餐厅、夹层和独立办公区,延伸至泳池与覆盖露台。
- 私人翼楼:服务区域、通道、卧室与共用浴室;上层设有主卧及次卧,视野可控。
庭院作为半室外空间连接内部流线,同时包围日常仪式。
照片 © 阿里安娜·波洛
照片 © 阿里安娜·波洛
照片 © 阿里安娜·波洛结构、透明与轻盈感
钢结构柱、板和梁的清晰结构语言实现长跨距,并略微抬升公共翼楼使其悬浮于地面之上。这种轻盈感通过庭院强化视觉连续性,而卧室体量则以适度透明和阴影控制作为平衡。
照片 © 阿里安娜·波洛
照片 © 阿里安娜·波洛生活体验:流动与氛围
一系列的抵达路径围绕庭院展开,引导视线穿越各层体量。双层空间通过夹层与露台相连,夜晚灯光温暖钢铁节奏和石材表面,使住宅成为景观中的静谧灯塔。
照片 © 阿里安娜·波洛
照片 © 阿里安娜·波洛
照片 © 阿里安娜·波洛核心空间:客厅、餐厅与画廊
开放式客厅和餐厅沿庭院边缘布局,高窗捕捉变化的光线。画廊式走廊成为每日漫步空间,贴近花园,增强住宅的整体连续感。
照片 © 阿里安娜·波洛
照片 © 阿里安娜·波洛
照片 © 阿里安娜·波洛
照片 © 阿里安娜·波洛
照片 © 阿里安娜·波洛
照片 © 阿里安娜·波洛厨房与露台:内外日常生活的融合
厨房是家庭生活的核心,设有大型岛台和直接通往遮阴露台的通道。滑动门创造无缝过渡,适用于全年烹饪、用餐与休闲。
照片 © 阿里安娜·波洛
照片 © 阿里安娜·波洛
照片 © 阿里安娜·波洛庇护与仪式感
私人空间营造宁静氛围——石材、木材和过滤光线共同塑造静谧环境。墙面石浴缸小巧地设于小庭院中,将日常习惯转化为景观仪式。
照片 © 阿里安娜·波洛
照片 © 阿里安娜·波洛
照片 © 阿里安娜·波洛
照片 © 阿里安娜·波洛材料与景观整合
温暖的区域配色精准使用:圣托马斯大理石和木质贴面构成触觉基础;木纹面板强调平面与隔断;干景花园搭配本地植物稳定环境并降低维护成本。
照片 © 阿里安娜·波洛
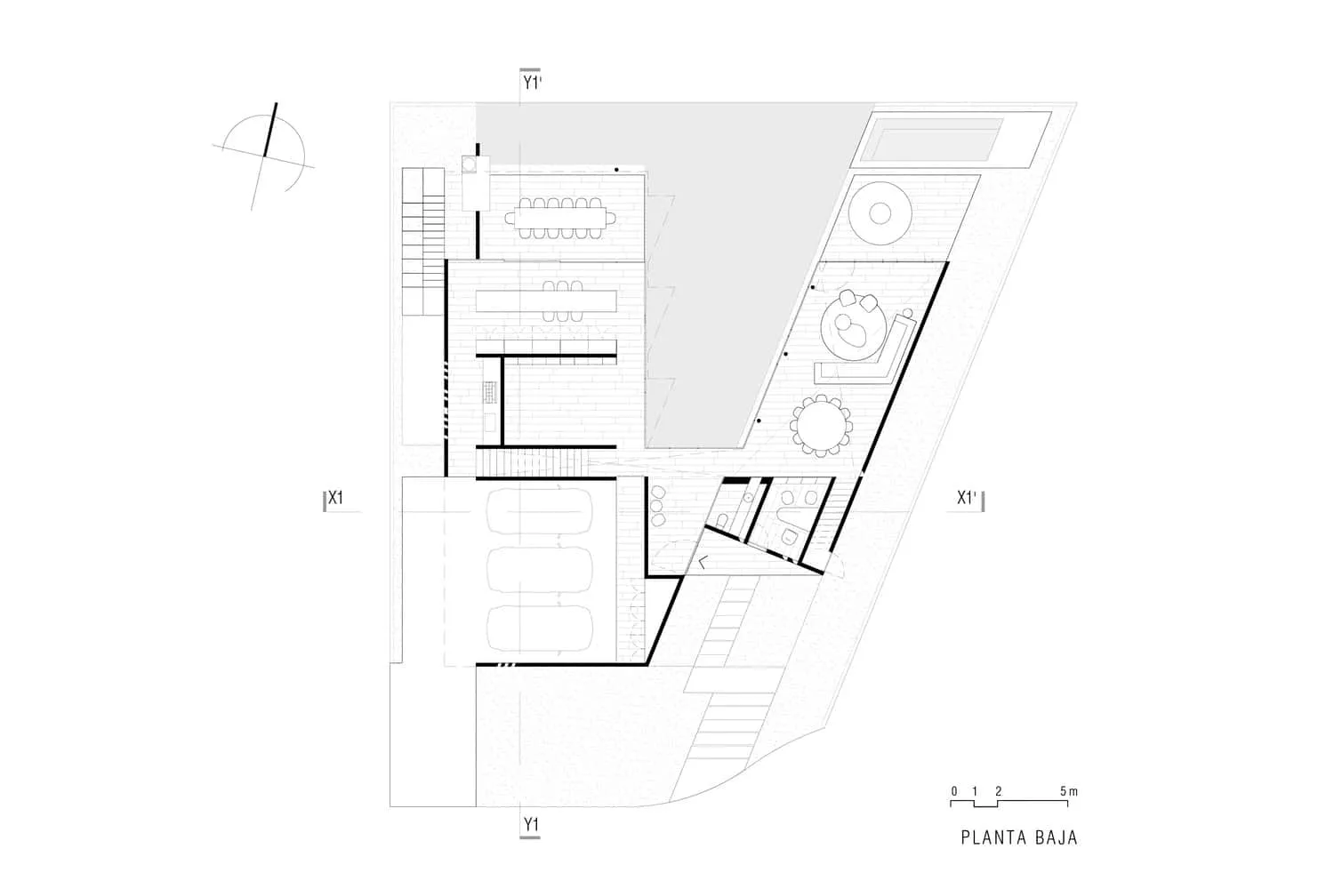
照片 © 阿里安娜·波洛图纸
平面图与立面图揭示V型布局和分区连接,协调两个翼楼与中央庭院之间的视野、光线与流动。










Need a renovation specialist?
Find verified professionals for any repair or construction job. Post your request and get offers from local experts.







