SAOTA和ARRCC的格利法达:雅典海岸的海景极简主义
位于雅典海岸线交界处,由SAOTA和ARRCC联合设计的格利法达是一个精致的五栋楼海景别墅,将现代地中海建筑与极简优雅完美融合。该项目由南非工作室SAOTA设计,室内则与ARRCC合作完成,提供爱琴海、阿伊纳岛和远处波罗斯山丘的全景视野,坐落在吉米特山脚下。
雕塑般的海岸构成
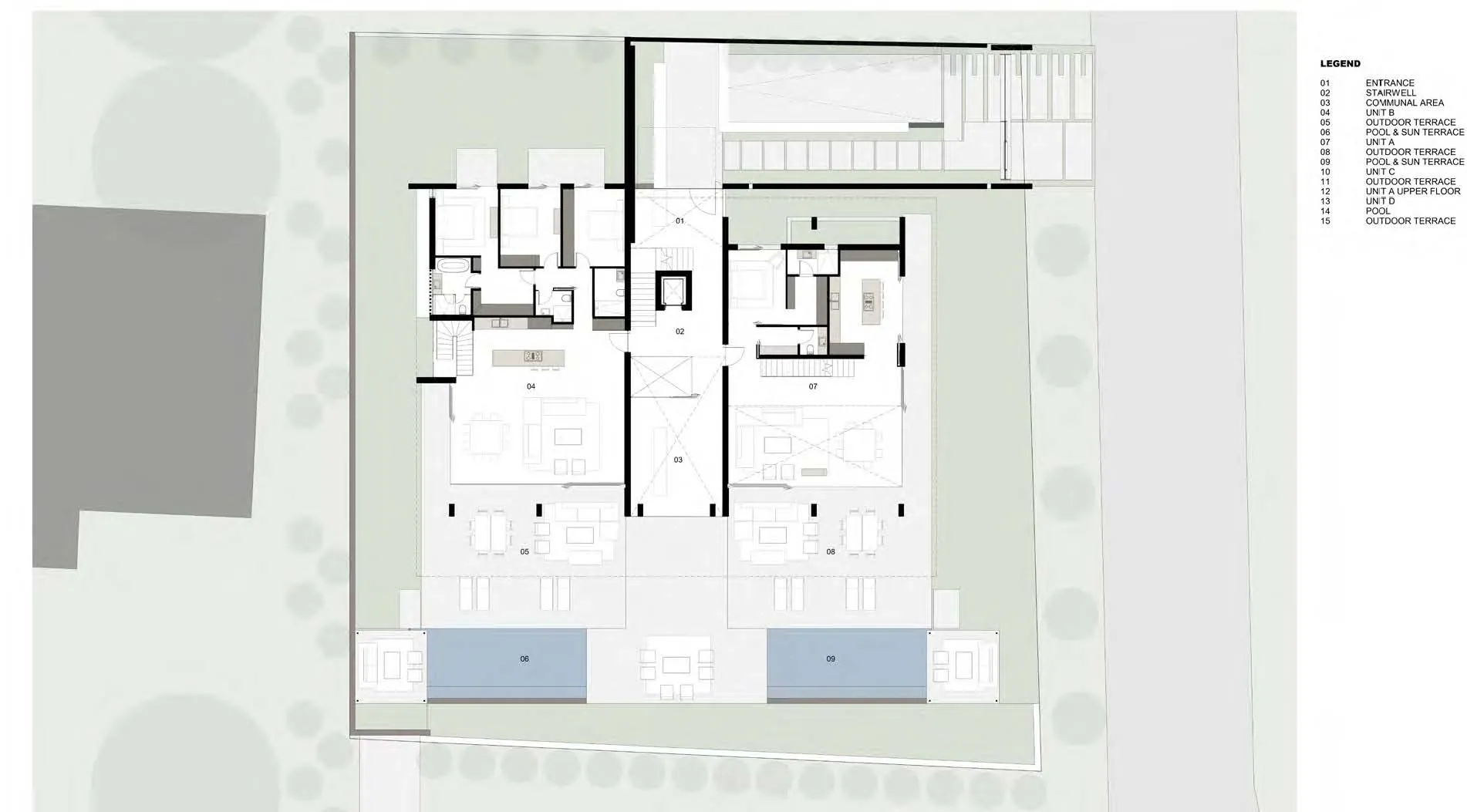
建筑占据着地块的突出角落,面向步行区,以清晰而谦逊的建筑语言和谐地融入海洋环境。四个宽敞的公寓围绕着三重体量的大厅,通向精心设计的花园和两个海洋泳池。顶层的双层复式公寓横跨整个建筑宽度,设有台阶,提供私密性和最佳视野。
海景立面采用深嵌式玻璃面板、突出的结构元素和可移动隐私屏风,过滤海光并调节透明度。相比之下,背面立面更为厚重,采用框架开口设计,保护住户免受邻近建筑的干扰。这种开放与封闭之间的辩证关系增强了美学和居住舒适度。
基于地中海传统的极简主义
建筑语言的定义是水平和垂直平面的交汇,采用纯白涂层营造永恒极简主义,并反映出气候敏感的地中海传统。建筑几何和比例保持古典平衡,同时强调现代沿海特色。
复式公寓的室内设计体现了这种精致的语言。这里简化平面和空隙构成空间关系,强调艺术与海景的融合。大型电动玻璃门隐入墙体凹槽中,将内部和外部空间融为一体。
为生活与宾客打造的画廊式复式公寓
业主强调空间的多功能性——既能容纳大型聚会,又能提供私密空间。复式公寓的中心是一个中央双体量居住空间,作为社交聚集点和艺术作品展览画廊。围绕该中心分布着模块化居住区域——餐厅、客厅、厨房和客房,具有连贯的平面设计,确保视觉上的连续性。
顶层的睡眠区域位于中央空隙两侧,配有可移动隔断,可根据需求调节私密性或开放度。这种空间配置使复式公寓能够扩展或缩小,轻松适应住户的需求。
自然色彩搭配与集成细节
ARRCC的室内设计理念强调克制,采用简化的木、石、白涂层和青铜装饰色调。围绕上部体量的纤维水泥“屋檐”增加了微妙的对比效果,定制家具、无缝天花板和大面积砂岩板进一步强化了极简风格。
宽敞的圆形露台由轻盈浮动屋顶保护,并通过泳池下沉。角落凉亭定义了户外用餐和休闲区域。精心定制的百叶窗阳台在保持私密性的同时不破坏开阔的海景,玻璃栏杆则保持与大海的视觉连接。
结语:与环境和谐共存的建筑
SAOTA和ARRCC的格利法达是一座建筑学与感官清晰度的杰作。其谦逊奢华、精致的空间编排和冥想般的色调营造出符合地中海语境的环境——在雅典最负盛名的海滨区域庆祝光线、空间与宁静。
摄影师:瓦格莱斯·帕特拉基斯和潘纳吉奥斯·温瓦克斯
摄影师:瓦格莱斯·帕特拉基斯和潘纳吉奥斯·温瓦克斯
摄影师:瓦格莱斯·帕特拉基斯和潘纳吉奥斯·温瓦克斯
摄影师:瓦格莱斯·帕特拉基斯和潘纳吉奥斯·温瓦克斯
摄影师:瓦格莱斯·帕特拉基斯和潘纳吉奥斯·温瓦克斯
摄影师:瓦格莱斯·帕特拉基斯和潘纳吉奥斯·温瓦克斯
摄影师:瓦格莱斯·帕特拉基斯和潘纳吉奥斯·温瓦克斯
摄影师:瓦格莱斯·帕特拉基斯和潘纳吉奥斯·温瓦克斯
摄影师:瓦格莱斯·帕特拉基斯和潘纳吉奥斯·温瓦克斯
摄影师:瓦格莱斯·帕特拉基斯和潘纳吉奥斯·温瓦克斯
摄影师:瓦格莱斯·帕特拉基斯和潘纳吉奥斯·温瓦克斯
摄影师:瓦格莱斯·帕特拉基斯和潘纳吉奥斯·温瓦克斯
摄影师:瓦格莱斯·帕特拉基斯和潘纳吉奥斯·温瓦克斯
摄影师:瓦格莱斯·帕特拉基斯和潘纳吉奥斯·温瓦克斯
摄影师:瓦格莱斯·帕特拉基斯和潘纳吉奥斯·温瓦克斯
摄影师:瓦格莱斯·帕特拉基斯和潘纳吉奥斯·温瓦克斯
摄影师:瓦格莱斯·帕特拉基斯和潘纳吉奥斯·温瓦克斯平面图







Need a renovation specialist?
Find verified professionals for any repair or construction job. Post your request and get offers from local experts.







