Лофт в помещении старой фабрики в Бруклине15 фото
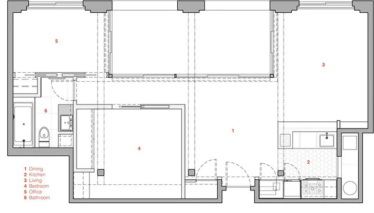
Пред нами классический лофт в здании бывшей фабрики в Нью-Йорке, который, тем не менее, имеет свою индивидуальность и яркий характер. Сам дом находится в одном из промышленных районов Брулина, который переживает новый этап реконструкции заброшенных заводов и фабрик. Архитекторы студии General Assembly постарались сохранить основные лофтовые элементы: деревянные балки и стены из красного кирпича. В то же время, планировка довольно необычная и оригинальная, чему, безусловно, обязана своем индустриальному прошлому. Классный проект!















Нужен мастер по ремонту?
Найдите проверенных специалистов для любых ремонтных или строительных работ. Разместите заказ и получите предложения от местных мастеров.




