Перепланировка небольшой сталинки: как это было - Дизайн интерьера дома и квартиры - REMONTNIK.PRO

Перепланировка небольшой сталинки: как это было

Поделиться:
Эта статья также доступна на следующих языках:🇺🇸🇺🇦🇫🇷🇩🇪🇪🇸🇵🇱🇨🇳🇮🇳🇯🇵

Низкий потолок, маленькие комнатки и нехватка воздуха — так можно было описать эту квартиру до перепланировки. Посмотрите, как дизайнеру удалось исправить положение

Мы уже рассказывали об интерьере этой квартиры по проекту дизайнера Ирины Кривцовой. А сегодня чуть подробнее остановимся на перепланировке. Неудобное пространство превратили в светлую студию со спальней, офисом и гостиной в одном помещении.

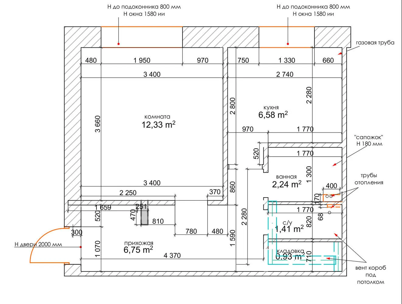
Что мы знаем об этой квартире? Тип дома сталинка Метраж 32 кв. м Комнаты 1

Фотография: Планировки в стиле , Скандинавский, Современный, Квартира, Перепланировка, Ирина Кривцова, Сталинка, 1 комната, до 40 метров – фото на нашем сайте Сделали вход в кухню из комнаты

Чтобы визуально увеличить небольшое пространство. Правда, полностью объединить комнату с кухней не получилось из-за газа. Так что между комнатами предусмотрели раздвижные двери. А визуально объединить все помещения помогла отделка: светлые стены + цветной плинтус.

Убрали перегородку между комнатой и коридором

Это также помогло расширить пространство (учитывая, что коридор изначально был узкий и темный). Теперь сюда попадает достаточное количество естественного света из комнаты. О приватности тоже подумали: часть стены отделяет зону отдыха от прихожей.

Фотография: Прихожая в стиле Современный, Скандинавский, Квартира, Перепланировка, Ирина Кривцова, Сталинка, 1 комната, до 40 метров – фото на нашем сайте Объединили санузел, ванную и кладовку

Изначально планировка предполагала крошечную ванную, такой же крошечный санузел и кладовку, в которую ничего бы не поместилось. Дизайнер предложила объединить три помещения в одно и предусмотрела достаточно мест хранения для бытовой химии и предметов личной гигиены.

Фотография: Ванная в стиле Современный, Скандинавский, Квартира, Перепланировка, Ирина Кривцова, Сталинка, 1 комната, до 40 метров – фото на нашем сайте Что получилось в итоге?

Нужен мастер по ремонту?

Найдите проверенных специалистов для любых ремонтных или строительных работ. Разместите заказ и получите предложения от местных мастеров.

Вам также может понравиться