Дизайн трехкомнатных квартир. Как правильно заполнить интерьер?
Современный дизайн при достатке площади проявляет себя как нельзя лучше. Это ярко видно из проекта Дмитрия Петрова и Ивана Кочева.
Дизайн интерьера трехкомнатной квартиры
Современный дизайн при достатке площади проявляет себя как нельзя лучше. Это ярко видно из проекта Дмитрия Петрова и Ивана Кочева.

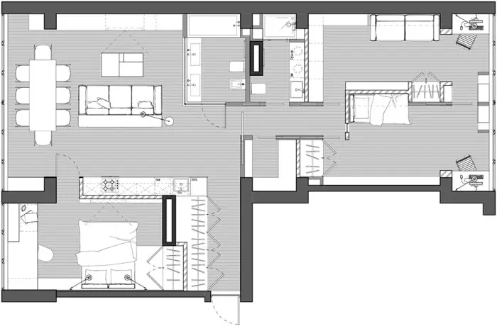
Фото 1 — Перепланировка для 3-хкомнатной квартиры. Задача — из трешки сделать функциональную четырехкомнатную квартиру. Площадь 100,4 кв.м

Фото 2 — Гостиная, столовая и кухня в этом проекте объединены в единое пространство

Фото 3 — Спальное место в проекте Дмитрия Петрова и Ивана Кочева словно парит над землей благодаря подиуму и его подсветке
Классика, пожалуй, больше любого другого стиля жадна к свободному пространству квартиры. Потому, если и создавать ��акой интерьер, то только в трехкомнатной квартире. Как пример − проект трехкомнатной квартиры в классическом стиле от Елены Битулевой.

Фото 4 — Перепланировка с расстановкой мебели для трехкомнатной квартиры, оформленной в классическом стиле

Фото 5 — Дизайнер Елена Битулева вместила классику даже в маленькой прихожей. Так может выглядеть дизайн коридора в классическом стиле для небольших площадей

Фото 6 — Роскошный интерьер зала в классическом стиле в этом проекте не имеет четкого зонирования
Классика на современный манер − одна из не выходящих из моды тенденций. В проекте Дарьи Широковой и Инги Аршба классика находит новое решение в интерьере трехкомнатной квартиры в одном из исторических зданий Москвы.

Фото 7 — Дизайн-проект трехкомнатной квартиры без перепланировки

Фото 8 — Сочетание белого и черного, глянцевых и хромированных поверхностей в классическом интерьере на современный манер выглядят роскошно

Фото 9 — Дизайн прихожей в классическом стиле — это сдержанные цвета, массивная деревянная дверь с чуть состаренной ручкой и потолочная люстра с хрустальными подвесками
Барокко, как и классика − затратный стиль для интерьера. Тем более, если речь идет об обустройстве трехкомнатной квартиры. Вот как может выглядеть дизайн типовой трехкомнатной квартиры (дом 90-й серии) в стиле барокко.

Фото 10 — Дизайн-проект трехкомнатной квартиры в стиле барокко

Фото 11 — Дизайн зала в трешке. Без камина (пусть и электрического) интерьер комнаты был бы неполноценным. В позолоченной раме над камином ‘спрятана’ плазма

Фото 12 — Просторный коридор с отделкой из мрамора. Дизайн ремонта в стиле барокко — дело рук Анны Владимировой (г. Саратов)
Разумный минимализм в интерьере − идеальный вариант для того, чтобы подчеркнуть свободное пространство жилья (например, в стандартной квартире дома серии КОПЭ при средней площади 77-86 м²). В этом стиле можно выполнить даже дизайн малогабаритной трехкомнатной квартиры-хрущевки и других построек «из прошлого». Как? Вот варианты дизайна от Марии Каштановой:

Фото 13 — 3-хкомнатная квартира после перепланировки

Фото 14 — После соединения гостиной и кухни вы получите многоцелевое студийное светлое пространство

Фото 15 — Пастельные светлые теплые тона только подчеркнут пространство квартиры
Ироничный интерьер трехкомнатной квартиры

Фото 16 — Илья Хомяков и Светлана Горбачева решили играть с сочетанием фактур — грубыми древесными поверхностями и более мягкими текстильными

Фото 17 — По мнению дизайнеров, им удалось создать ироничный советский интерьер на современный лад

Фото 18 — На фоне общей нейтральной цветовой гаммы комнаты яркими акцентами выглядят красные ретро-кресла и голубой диван

Фото 19 — Обеденная зона и кухня выглядят не менее жизнерадостно, чем интерьер всей квартиры

Фото 20 — Перед вами нестандартное решение для интерьера санузла
Нужен мастер по ремонту?
Найдите проверенных специалистов для любых ремонтных или строительных работ. Разместите заказ и получите предложения от местных мастеров.
Вам также может понравиться
Больше статей:
Идеи дизайна спальни. Выбираем свой особенный интерьер
Дизайн шкафов для спальни
Интерьер спальни узкой и… очень узкой
Дизайн стен в спальне: от отделки до декора
Дизайн спальни небольших размеров своими руками
Дизайн спальни онлайн. Берем дело в свои руки!
Интерьеры спальни в классическом стиле и не только…
Дизайн спальни для молодой пары. Уютный романтичный уголок