Nowoczesny domek przy jeziorze w Kanadzie
Kanadyjska firma YH2 zaprojektowała minimalistyczny domek na brzegu jeziora. Dom zlokalizowany jest między Montreal i Quebec, niedaleko Wysokich Gór – popularne miejsce wypoczynku.

Wcześniej na małym polu stał klasyczny dom letniskowy, ale właściciel postanowił całkowicie zmienić format. Na powierzchni 140 m² zbudowano nową nowoczesną konstrukcję z wysokim, ostre krytym dachem.

Drewniany domek stoi zaledwie kilka kroków od wody i zachwyca swoim uproszczeniem. „Stawialiśmy się do prostego projektu i skromnego rozmiaru, zgodnego z naturą”, – opowiadają o swoim projekcie architekci.

Wykończenie wykonano z białego kedru – powszechnego w Kanadzie materiału budowlanego. Jednak w innych krajach kanadyjski kedr jest znany swoją praktycznością i wytrzymałością.
Na przykład często stosowany przy budowie saun. Taki domek długo nagrzewa się w ciepłe dni, zachowując chłodną atmosferę i również długo utrzymuje ciepło.

Ten sam materiał użyto także do wewnętrznej dekoracji. Na skatnym dachu sypialni podkreśla wysokość konstrukcji. Po dwóch stronach fasady położone są trzy wysokie okna: zostały wyróżnione za pomocą czarnego obramowania, aby podkreślić symetrię konstrukcji.

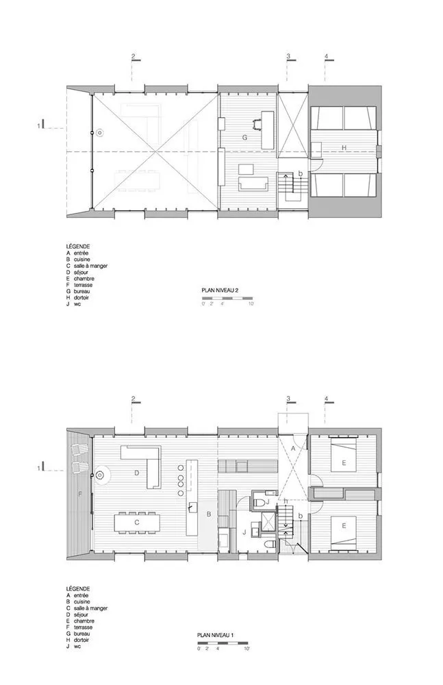
Otwarta planistycznie przestrzeń połączyła na pierwszym piętrze salon, jadalnię i kuchnię, a także sypialnię. W attyce zaprojektowano salon z biurem i dodatkową sypialnię.
Pokój z czterema łóżkami dwuosobowymi znajduje się na górze. Aby oszczędzić miejsce, szuflady do przechowywania zostały schowane pod konstrukcjami łóżek. Nie dziw się ilości łóżek: do domu przyjeżdża rodzina z ośmioma osobami.










Need a renovation specialist?
Find verified professionals for any repair or construction job. Post your request and get offers from local experts.
You may also like
Więcej artykułów:
Krótko o oszczędzaniu: jak zrobić remont i nie stracić dużo pieniędzy
Nowa ekologiczna kolekcja IKEA, w którą się zakochaliśmy
Batalia projektowa: jednokomnatny mieszkanie dla pary z kotem
Jak odtworzyć stary domek wczasowy: historia dziewczyny z Danii
Przeplanowanie standardowego dwu-pokojowego mieszkania: jak to wyglądało?
Mały domek dla dużej rodziny: przykład z Australii
Piękne i wytrzymałe: 8 roślin, które pasują do naszego klimatu
Jak IKEA może pomóc w utrzymaniu porządku w mieszkaniu?