Pequeño pero elegante casa de un piso en el bosque cerca de Seattle29 photos
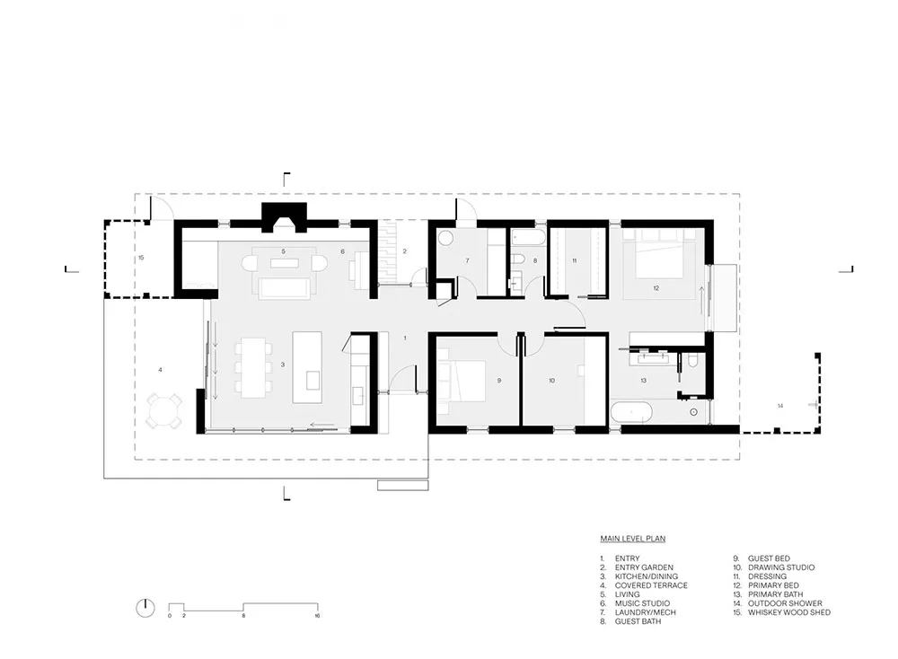
Esta moderna cabaña en el bosque cerca de Seattle parece bastante pequeña desde afuera: una estructura de un solo piso con materiales naturales se integra perfectamente en el paisaje local.





























Need a renovation specialist?
Find verified professionals for any repair or construction job. Post your request and get offers from local experts.
More photo collections
Más galerías
Estampados, pinturas y arte: un townhouse ecléctico en Londres
Interior escandinavo agradable bajo los suaves rayos del atardecer (62 m²)
Tradicional, pero ligero y atractivo: casa en la isla de Charleston
Arco de ladrillo y columnas: increíble apartamento en edificio del siglo XII en Milán
Iluminada y elegante reconstrucción de una villa mexicana en California
Juego inusual de colores en el diseño de un apartamento sueco (59 m²)
Interesantes tonos pastel en el diseño de un apartamento peculiar en Suecia
Interior escandinavo suave con acentos amarillos claros (65 m²)