Increíble estudio de 36 m², acogedor y espacioso
Para crear una atmósfera de vacaciones en una apartamento de Moscú, el diseñador apostó por una distribución abierta, colores blancos en la decoración, madera natural y accesorios con estilo boho
Este estudio de 36 metros cuadrados fue decorado por la diseñadora Anna Morozova para una cliente muy ocupada que soñaba con un rincón acogedor para relajarse.
Como los apartamentos están ubicados en un complejo residencial dentro de la antigua fábrica de comerciantes del siglo XIX, se decidió recrear la atmósfera correspondiente en el diseño del interior.
Veamos qué resultado se obtuvo.
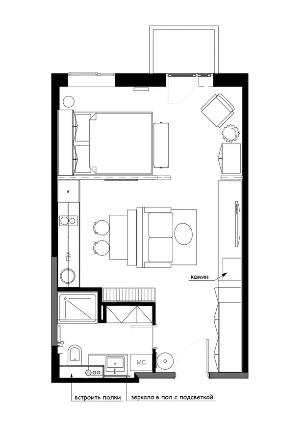
UBICACIÓN: MoscuMETRADO: 36 m²HABITACIONES: 1BAÑOS: 1ALTURA DE TEJADO: 3 mDISEÑO: Anna MorozovaFOTOS: Dina AlexandrovaDistribución
El diseñador dividió el espacio en una habitación, zona con TV y sofá, baño con ducha, así como un mueble de cocina con mesa para comedor.


Revestimiento
Las paredes fueron pintadas con pintura blanca y el suelo fue revestido con tablero de ingeniería. Gracias a la textura envejecida del piso y la solución de diseño interior clara, el apartamento se convirtió en algo que recuerda una cabaña de campo de la infancia de la dueña.


El techo está decorado con telas blancas de tela que se fijan con cinta adhesiva y son fáciles de quitar. Por lo tanto, no hay problemas con la limpieza.

La decoración y mobiliario del baño son similares a otras áreas: la losa del piso repite la textura del tablero de ingeniería, y los armarios con las paredes están pintados en blanco. En la zona de ducha se utilizó azulejo con aspecto de piedra.

Almacenamiento
Todas las soluciones de almacenamiento fueron diseñadas a medida. El armario para ropa en el pasillo se une suavemente con los de la sala.


En el gran armario del baño se guardan la aspiradora, ropa y accesorios para el baño. La mesilla bajo el lavabo tiene cajones deslizables, con muchos compartimentos en la parte superior para cosméticos y joyería.

Muebles
Además de los sistemas de almacenamiento personalizados, todos los muebles fueron fabricados a medida, incluyendo la cama, el sofá y la encimera de caoba.



Need a renovation specialist?
Find verified professionals for any repair or construction job. Post your request and get offers from local experts.
You may also like
Más artículos:
La paloma de Picasso: historia del principal símbolo del mundo
Con respeto a las tradiciones locales: 7 hermosos embajadas de todo el mundo
9 sencillos consejos para ahorrar en el presupuesto del baño
Por qué no debes temer el color blanco: mostramos el ejemplo de un acogedor refugio
5 ideas inusuales de cómo decorar tu casa con plantas de interior
6 cosas que debes hacer en el jardín de la finca esta semana
5 formas de ocultar las juntas del linóleo + comentarios del experto
Incredible diseño escandinavo, o baúhaus, lleno de minimalismo