Spiel natürlichen Lichts in einem warmen, minimalen Interior in Mexiko25 photos
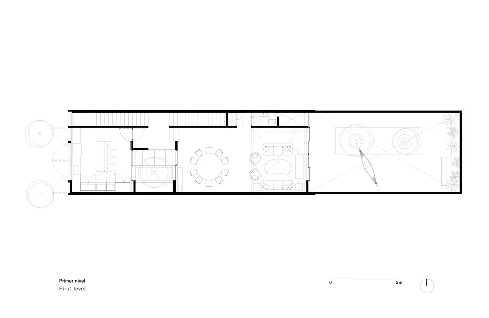
Dieses moderne Townhouse in Mexiko ist die Quintessenz minimalistischen Designs und Architektur.

























Need a renovation specialist?
Find verified professionals for any repair or construction job. Post your request and get offers from local experts.
More photo collections
Weitere Galerien
Das Königreich der blühenden Wandpapiere im skandinavischen Wohnzimmer mit Dachgeschoss
Schwedischer Chalet mit stilvollen Kontrastinterieurs und großen Fenstern
Luxusbögen und Putzwerk auf Wänden: Ein schöner Haus in Kalifornien
Neue Inspirationen von Fotograf Mike Karlsson Lundgren
Entspannte Eleganz im Design eines Hauses in Texas
Stilvoller Design in Texas mit gemütlichen zeitlosen Akzenten
Entspannende Hausinterieur mit Pool in Kalifornien
Herbstinterieurs von Dekorateur Linnea Salmen