Modernes Ferienhaus in Australien inspiriert von traditionellen Bauernhöfen17 photos
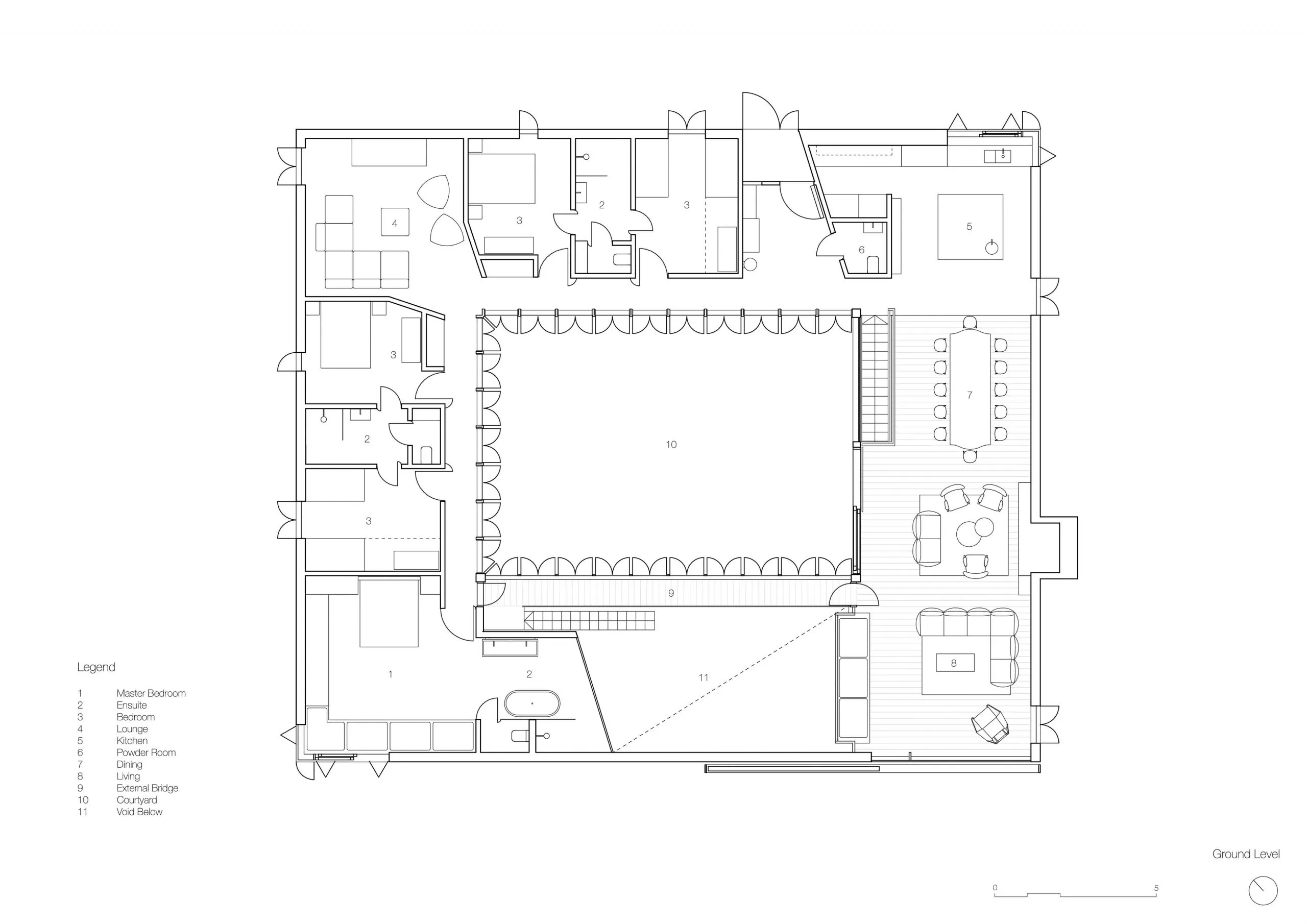
Aus der Ferne ähnelt dieses Haus mitten in der wilden Natur in Australien einem landwirtschaftlichen Bauernhaus — Architekten der Studie Wardle geben nicht umsonst preis, dass sie sich an traditionellen Bauernhöfen australischer Bauern bedient haben.

















Need a renovation specialist?
Find verified professionals for any repair or construction job. Post your request and get offers from local experts.
More photo collections
Weitere Galerien
Schattierungen des Grün und warme Akzente: Wohnung in Schweden (87 qm)
Gemütlicher Interieur von englischem Designer mit großem Dekor
Hervorragende traditionelle Villa mit Terrassen an der Küste in Schweden
Soniger Interior in Stockholm mit bunten Akzenten
Organische Formen und mediterraner Stil: Villa in Saint-Tropez
Hervorragende Küche als Herz des victorianischen Hauses in London
Schönes modernes Haus in Kalifornien, das clever als alte Villa getarnt ist
Eindrucksvoller Raum und warmer Stil: Haus am See in den USA