Wie man einen einzigartigen Interior gestaltet: Tipps von Profis
Jedes Interior sollte Ihren Eigentümern passen, wie ein Anzug, der nach individuellen Maßen genäht wurde. Wir erklären, was dafür getan werden muss
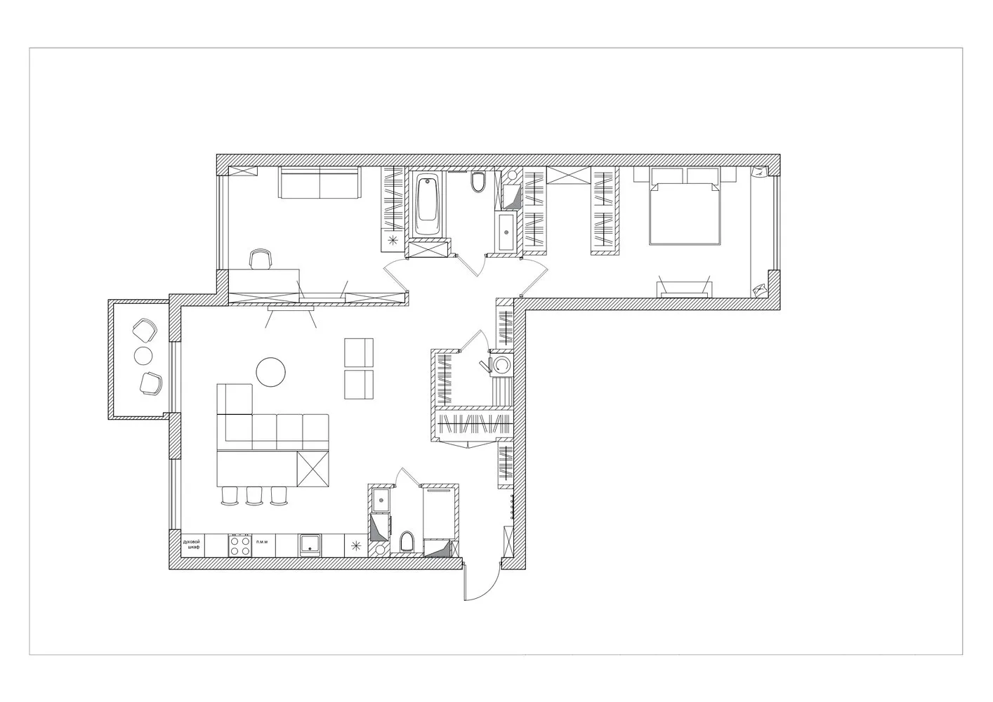
Profis der DSGN HUB Studio haben ein Design-Projekt einer drei-Zimmer-Wohnung mit fast 100 Quadratmetern für eine Kunden entwickelt, die gerne weitläufige, hellen und luftigen Interiors mag. Wir haben von Designerin Nina Voynova erfahren, was man tun muss, damit die Einrichtung nicht nur funktional, sondern auch stylisch ist.
Nina Voynova - Experte - Interior-Designerin, Mitbegründerin der DSGN HUB Studio
Die Raumaufteilung planen
Die Einzigartigkeit des Raums beginnt mit seiner Planung. Bei der Arbeit darauf achten wir immer auf zwei Faktoren: die Bedürfnisse des Kunden und die Geometrie des Raums.
In diesem Projekt war die Wohnzimmerfläche lang und schmal. Wir wollten sie näher an eine regelmäßigere Form heranbringen - das verleiht Wohlfühlen. Wir haben die Küche mit dem Wohnzimmer verbunden und die Länge des Raums (der nun eher quadratisch ist) durch einen mit Holzplatten verkleideten Würfel ausgeglichen, in dem sich die Garderobe und die Waschküche befinden.
Beim Planen des Raums für den Sohn der Kunden mussten wir berücksichtigen, dass er einen großen Schreibtisch braucht, aber gleichzeitig nicht mit dem Rücken zur Tür sitzen möchte. So entstand eine ungewöhnliche Komposition mit Regalen und einem integrierten Schreibtisch.
MöbelplanungDie Stimmung bestimmen
Wichtig für die Schaffung eines Interiors ist es, seine Inspirationsquelle zu finden. Sobald dieser Schritt abgeschlossen ist, wird die Arbeit leichter und interessanter. Auf dem Muralboard wird die Konzeptentwicklung gesammelt - nicht ein konkreter Interior, sondern eine Atmosphäre, die das Farbspektrum und die Stimmung bestimmt. Das kann alles sein, wichtig ist nur, dass es Assoziationen mit den Wünschen des Eigentümers oder seinem Lebensstil hat.
Die Kunden wünschte, dass das Interior „weitläufig, frisch, hell und viel Luft“ sei. Tatsächlich sollte diese Wohnung ein persönlicher Insel werden, auf der es immer „gute Wetter“ gibt - und die Eigentümerin kann nach der Arbeit umschalten und sich erholen.

So entstand eine Sammel-Ästhetik warmer Länder, sandfarbene Palette, Marmor und Hotel-Stil. Ein Ausflug, besonders auf Inseln, bedeutet immer eine Abkehr von der Realität. Die Pracht natürlicher Materialien wurde durch Messing unterstrichen - diese Idee kam von der Kunden selbst. An unserem ersten Treffen trug sie eine sehr effektvolle goldene Jacke.


Modische Bögen im Interior
Wir haben eine Sammlung zusammengestellt, damit Sie von diesem weichen Trend inspiriert werden
Mehr über den Kunden erfahren. Oder Ihre eigenen Bedürfnisse berücksichtigen
Der Raum, in dem der Sohn der Kunden jetzt lebt, ist nicht gut an seine Bedürfnisse angepasst. Es fehlt fast an Lagerraum. Bücher zum Beispiel werden auf dem Schreibtisch in Kisten gelagert.
Wir haben für seine Schlafzimmer einen großen Schrank und ein Bücherregal-System mit viel Beleuchtung vorgesehen. Auch wurde eine kleine Kühlbox in seinem Zimmer gewünscht. Wir haben sie in den Schrank eingebaut. Die Beleuchtung neben dem Bett wurde durch eine Plane realisiert, hinter der sich ein eingebautes Licht befindet. Es ist bequem einzuschalten, wenn man am Computer sitzt oder vor dem Schlafengehen sitzt.


Die Details durchdenken
Ein großer Teil der Individualität des Interiors wird durch Details geprägt. Aus dem Schlafzimmer öffnet sich eine schöne Aussicht auf die Moskau-Fluss, wir nutzten dies und eingerichtet eine Entspannungszone am Fenster - dort erschien ein gemütlicher Sofa mit einem kleinen rollenden Tisch, der gleichzeitig als Nachttisch dienen kann, wenn er näher an die linke Seite geschoben wird.


Die Kunden hat die Wohnung gekauft, um sie für sich selbst zu nutzen. Der Sohn hatte nicht geplant, dort dauerhaft zu leben, daher entschieden wir uns dafür, dem Interior weibliche Elemente hinzuzufügen - sanfte und abgerundete Linien. Dieses Motiv spiegelt sich in den Beleuchtungselementen, abgerundeten Spiegeln und dem Wandgemälde im Wohnzimmer wider. Das Wandgemälde wird auf Bestellung nach unseren Skizzen gefertigt.

Gewohnheiten berücksichtigen
Einzigartige Interiors sind Räume, die speziell nach Ihren Bedürfnissen gestaltet wurden, daher sollte es Ihre Gewohnheiten berücksichtigen. Das zeigt sich beispielsweise darin, wie Sie Ihre Wäsche trocknen: auf einem Wäschetrockner, auf einer aufklappbaren Trocknungsstange oder in einer Trocknermaschine - und in Kleinigkeiten, ob Sie einen Bademantel haben. Wenn ja, sollte es in der Badewanne einen speziellen Platz dafür geben.
In unserem Fall war es wichtig, eine eigene Waschküche einzurichten sowie eine große Garderobe im Schlafzimmer. Außerdem liebt die Kunden am Morgen einen Kaffee zu genießen. Sie kann sich in der Schlafzimmertür oder an der Kücheninsel im Wohnzimmer entspannen.


Need a renovation specialist?
Find verified professionals for any repair or construction job. Post your request and get offers from local experts.
You may also like
Weitere Artikel:
Luxus-Apartments mit minimalistischem Design
Führer: 3 kleine, aber sehr praktische Wohnungen
Umgestaltung einer kleinen Studio-Appartement für eine Familie mit Kind
Noch 10 Fundstücke für einen gemütlichen Zuhause unter 1000 Rubel
So extrahieren Sie den maximalen Nutzen aus einer Wohnung-Studio: 7 Beispiele
Skandinavischer Stil in den Trends 2020 – Lösungen, die Sie überraschen werden
Wie man einen stylischen „Oma-Interieur“ gestaltet – Beispiel aus Schweden
Großer Familienhaus mit 60er-Jahre-Filmdesign