PAR 21 Haus | DG Estudio | Valencia, Spanien
Vertikales Wohnen in L'Orta Nord
Lage in der ruhigen Gemeinde L'Orta Nord, an den Stadtrand von Valencia, zeigt das PAR 21 Haus, entworfen von DG Estudio, wie Architektur unter begrenzten Bedingungen gedeihen kann. Auf einem kompakten Eckenlotse, grenzend an eine der wichtigsten öffentlichen Plätze des Bezirks - umgeben von Kiefern und grünen Räumen - stellten sich die Architekten der offensichtlichen Aufgabe: ein Haus mit vollständiger Programmierung auf einem begrenzten Grundstück zu schaffen, ohne Licht, Raum oder Qualität des Raums zu opfern.
Ihre Lösung bestand darin, nach oben zu bauen und nicht nach außen, wobei die Funktionen vertikal auf vier separaten Ebenen angeordnet wurden. Dieser Ansatz verwandelt das kleine Grundstück in eine Reihe leuchtender, miteinander verbundener Räume, in denen der Landschaft und der Horizont von L'Orta Nord immer im Blick sind.
Konzept und räumliche Organisation
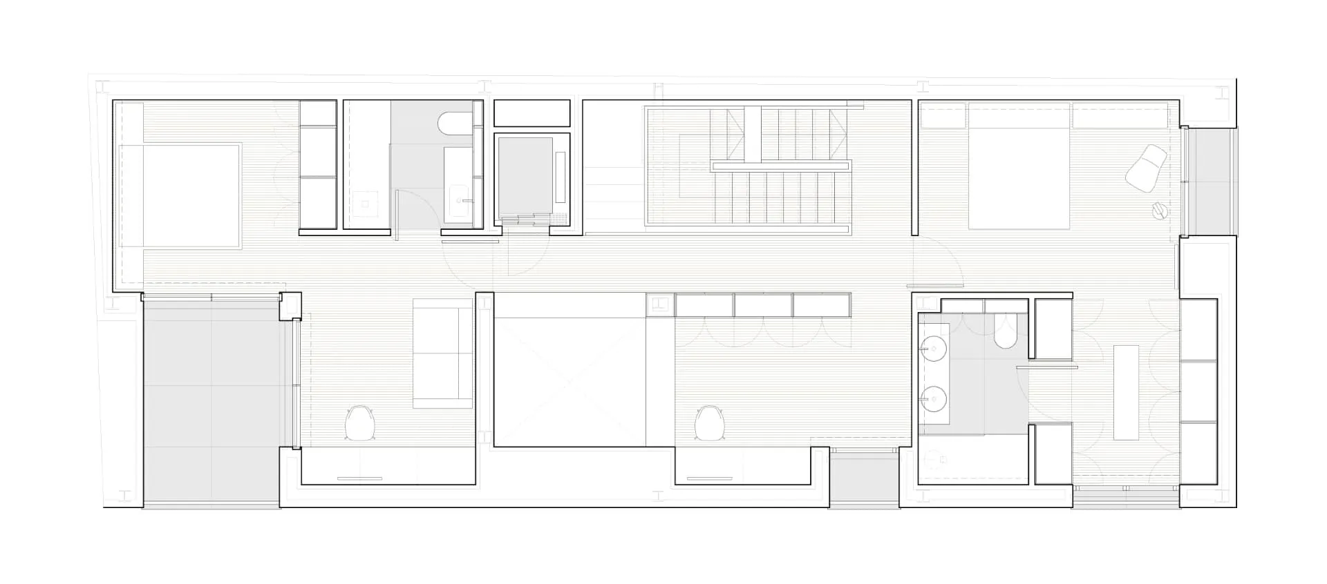
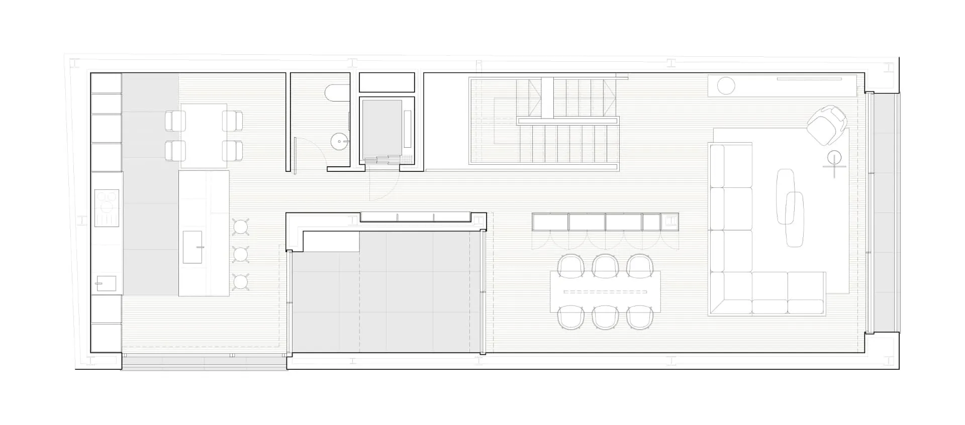
Aus Gründen der begrenzten Grundfläche entwickelten die Architekten das Haus als dünnes vierstöckiges Volumen, wobei jede Etage ihre eigene Funktion hat und einzigartige Aussichten bietet.
-
Erste und zweite Ebene: private Bereiche, inklusive Garage, Schlafzimmer und Arbeitsbereich. Diese Ebenen bieten Privatsphäre von der Straße, erhalten aber durch innere Innenhöfe und Patios gefiltertes Licht.
-
Zweite Ebene: öffentlicher Zentrum des Wohnhauses - Küche, Essbereich und Entspannungsbereich - öffnet dramatisch auf die Fläche über ein großes Panoramafenster, das umliegende Kiefern wie lebendige Kunst umrahmt.
-
Dritte Ebene: offener Entspannungsbereich, auf mehreren Terrassen unterschiedlicher Höhe angeordnet, endet mit einem kleinen Pool auf dem Dach, der das Außenwohnen und die Panoramasicht auf die Kirchturm unterstreicht.
Diese vertikale Hierarchie erlaubt es den öffentlichsten und erfahreneren Bereichen die höchsten Ebenen einzunehmen, wo Sonne, Grün und Aussichten sich kreuzen.
Treppe als architektonisches Element
Im Zentrum des Projekts steht die Treppe, nicht als utilitäre Verbindung, sondern als Skulpturelement. Ihre leicht und elegant konstruierte Struktur verbindet visuell die vier Ebenen, führt Bewohner vom Eingang bis zum Dach mit dem Gefühl von Kontinuität und Rhythmus. Das Lichtspiel auf ihren Oberflächen verwandelt die Treppe in einen kinetischen Zentrum – ständig wechselnder vertikaler Akzent, der die Identität des Hauses bestimmt.
Licht, Materialien und Verbindung zur Natur
Die Designphilosophie von DG Estudio basiert auf Durchlässigkeit und Dialog mit der Außenwelt. Umfangreiche Verglasung, innere Innenhöfe und Terrassen verwischen die Grenze zwischen Innenausstattung und Außenbereich, ermöglichen den natürlichen Lichtdurchgang durch das gesamte Haus während des Tages.
Warm neutrale Materialien – Stein, Holz und weißes Putz – schaffen eine ruhige Palette, die Helligkeit verstärkt und zusätzliche tactilen Tiefe hinzufügt. Minimalistische Detailierung hebt Proportionen und Fluss hervor, erlaubt Licht und Schatten, um jede Oberfläche lebendig zu machen.
Kompakte Grundstücke mit erweiterten Horizonten
Trotz städtischer Einschränkungen erreicht das PAR 21 Haus ein bemerkenswertes Gefühl der Offenheit. Seine vertikale Komposition, sanfte Übergänge innen/außen und sorgfältige Ausrichtung zur Fläche erlauben dem Haus, in der städtischen Umgebung zu atmen.
Die Intervention von DG Estudio verwandelt Beschränkungen in Möglichkeiten – beweisend, dass Dichte und Freude in der modernen mediterranen Architektur zusammen existieren können.
Fotos © Mariela Apollonio
Fotos © Mariela Apollonio
Fotos © Mariela Apollonio
Fotos © Mariela Apollonio
Fotos © Mariela Apollonio
Fotos © Mariela Apollonio
Fotos © Mariela Apollonio
Fotos © Mariela Apollonio
Fotos © Mariela Apollonio
Fotos © Mariela Apollonio
Fotos © Mariela Apollonio
Fotos © Mariela Apollonio
Fotos © Mariela Apollonio
Fotos © Mariela Apollonio
Fotos © Mariela Apollonio
Fotos © Mariela Apollonio
Fotos © Mariela Apollonio
Fotos © Mariela ApollonioGrundrisse





Need a renovation specialist?
Find verified professionals for any repair or construction job. Post your request and get offers from local experts.
You may also like
Weitere Artikel:
Ideas für den Dekor eines Hauses mit altem Reichtum, die nie out sind
Inspiration für den Interior-Design eines alten Reichtums
Haus Olivos von TATU Arquitectura in Montevideo, Uruguay
Haus Olivos von Balzar Arquitectos: Mediterraner Hofresort in César
Ombre-Wandkunst, die eine ideale Atmosphäre schafft
Einkrüppeliger Haus von Ambroggio Arquitectos in Rio Cuarto, Argentinien
Offene Küchen bleiben ein beliebter Trend: So gestalten Sie Ihre 2023
Offenes mittelalterliches Haus von AGORA Architecture + Design in Edinburgh, Schottland