UC21 Architects设计的悬臂式住宅,位于伊朗莫什拉
项目: 悬臂式住宅 建筑师: UC21 Architects 位置: 莫什拉,达马万德,伊朗 面积: 4 929平方英尺 摄影: 穆罕默德·哈桑·埃特法格
UC21 Architects设计的悬臂式住宅
该项目位于伊朗达马万德莫什拉,距离德黑兰60公里,海拔2400米,冬季非常严寒。
地块面积约为600平方米,尺寸为30 x 20米,坡度为20%。基于这一情况,我们面临了一项复杂的挑战,并尽一切可能利用可用空间和地块以满足客户需求。因此,我们将地块分为三部分:最大的一部分位于地块北部,那里有道路;第二部分用于临时娱乐活动;第三部分是地块的绿色区域。

因此,我们设计了一个娱乐地下室(包括按摩浴缸和酒吧),可直接连接到外部娱乐区,那里设有加热游泳池、壁炉和多功能区域。
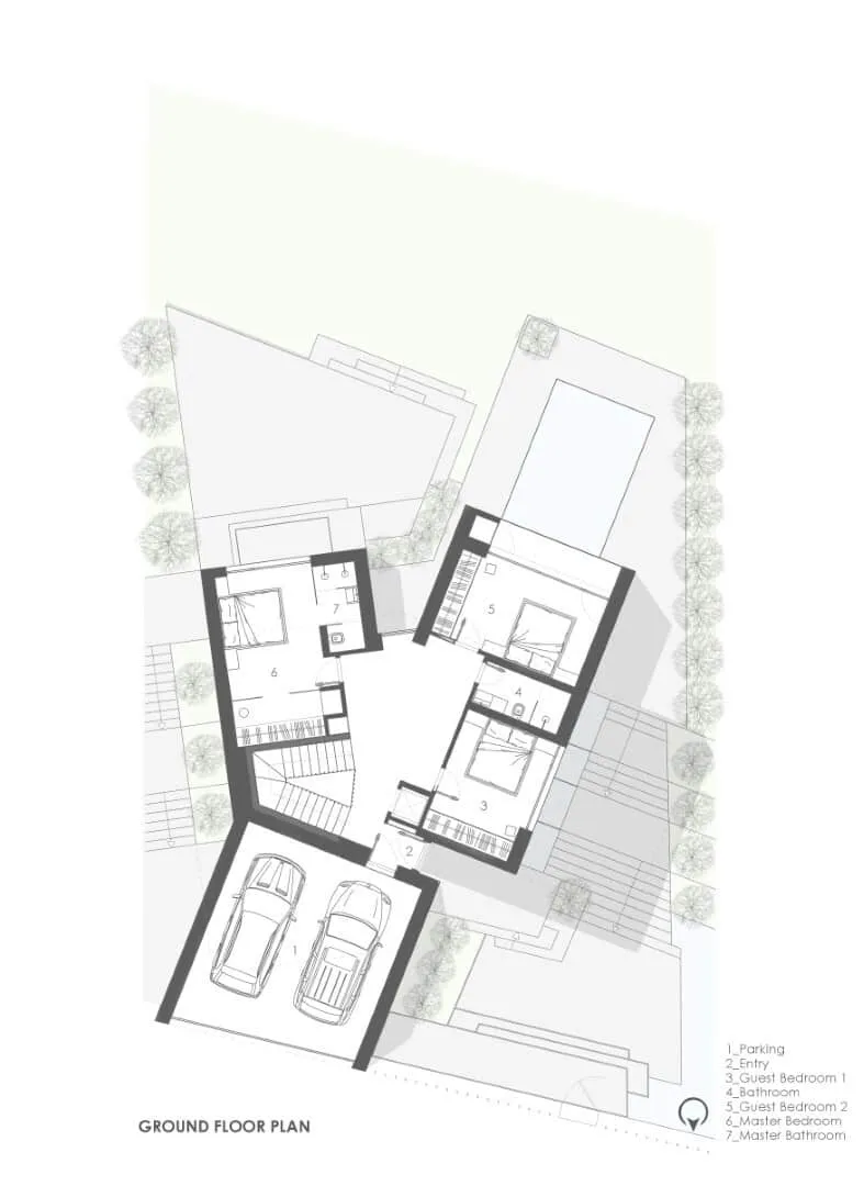
一楼用于私人区域(卧室)。我们设计了两个不同的体量:较小的用于客户主卧,较大的用于入户和客房。为了获得更多空间并增加这一层的功能性,我们决定扩展这两个体量并在南侧旋转30°,以在西侧增加一间卧室并扩大主卧。此外,扩展这些体量使我们能够部分覆盖游泳池(在雪天冬季使用非常有用)并完全覆盖壁炉区域。最终,我们向外延伸了最大体量的北侧,以创建入户通道,并划分出第三个小型空间用于停车。

最后一层(一楼)用于休闲区域,也分为两个体量:一个用于客厅,另一个用于厨房和餐厅。这些体量与下层垂直布置,以提供额外功能:两个大露台。休闲区位于最顶层,以便欣赏周围风景的绝佳景色。这一概念使我们能够在房屋和绿色区域中获得更多面积,以满足客户的全部需求。
最佳解决方案是设计一座别墅,与周围山景和谐融合,其形状模仿山脉并扩展楼层某些区域1米,形成屋檐。这有利于排水并符合自然环境。此外,我们决定将建筑整体涂成白色,使其在雪季与白雪相协调,并在夏季突出显示。最后,使用大面积玻璃表面以欣赏美景。
-项目描述和图片由UC21 Architects提供






















图纸









Need a renovation specialist?
Find verified professionals for any repair or construction job. Post your request and get offers from local experts.







