装饰板式建筑中的两居室公寓:宜家与设计师方案对比
为更新寻找灵感并投票选出您最喜欢的最佳方案
我们找到了两种适用于KOPÉ-85系列两居室公寓的优秀设计方案。一种来自米拉·科爾帕科娃(Milla Kolpakova)的项目,另一种则来自宜家网站“公寓画廊”部分。我们将为您详细介绍,并在文章末尾邀请您投票选出最佳选项。
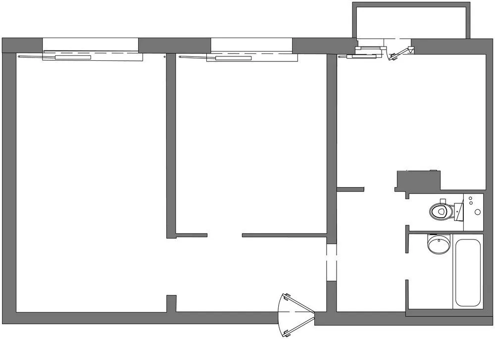
关于这套公寓的信息:系列KOPÉ面积58平方米房间数2
设计师方案
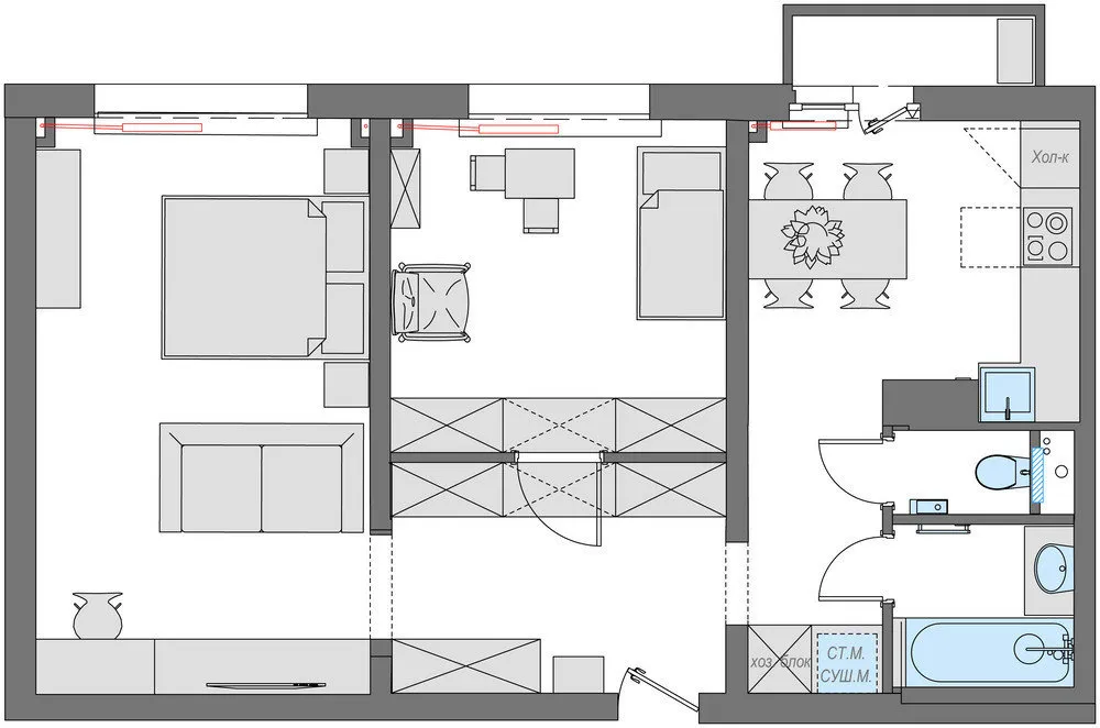
米拉·科爾帕科娃为刚有宝宝的年轻夫妇设计了一套公寓。室内设计简洁明快:厨房配备了烹饪所需的一切,并设有供全家用餐的区域。其中一个客厅被指定为儿童房,另一个则改造成了多功能空间——兼具卧室、客厅和办公室的功能。
浴室和卫生间分开设置,同时为洗衣机和宽敞的储物系统找到了合适的位置。我们接下来将深入探讨。
厨房沿一面墙安装了一个角落水槽的厨房单元。橱柜一直做到天花板,用来存放所有必要的厨具和电器,使操作台面保持整洁。由于阳台门的存在,靠窗的墙面无法使用。
请注意布局:厨房创造出通往走廊的开放式通道——在视觉上扩大了空间。入口附近有一个通风管道,但未被利用。
卧室-客厅-办公室
由于业主偏好全尺寸双人床,房间并未改造成纯粹的客厅,而是设计为多功能空间。
这个问题通过巧妙的空间划分解决——房间的一部分布置了睡眠区域,并用沙发将其与其余空间隔开。这里开始是一个小客厅,自然过渡到办公区(角落放置了一张小书桌)。
儿童房由于孩子还很小,房间里放置了婴儿床,以后可以替换——空间足够。还有换尿布台,未来会换成书桌。
为了储存书籍和玩具,使用了置物架(顺便说一句,它也来自宜家)。靠近房间入口处,安装了内置衣柜,所有衣物都能轻松收纳。
浴室和卫生间由于面积限制,这里只能放置最必要的物品。没有空间放置洗衣机——因此将其移至走廊并嵌入壁龛中。
宜家方案
宜家专家也为带孩子的家庭设计了一套公寓,但他们选择不将大房间改为卧室。从外观上看像一个普通客厅,但其实是一个可适应居住者需求的转换空间。在儿童房中,他们也采用了几个有趣的设计思路——我们来详细介绍。
厨房厨房单元和餐桌的布局完全复制了设计师的设计,但有一些不同之处。例如,通风管道被充分利用——在上面放置了一个搁板,延续了工作台面。下方隐藏着一个折叠梯凳,可用作额外的椅子。
餐桌旁安装了一个展示柜用于存放餐具,并挂上了一个小架子。顺便说一下,厨房完全与走廊隔开。
客厅-转换空间宜家设计师决定不使用双人床以留出更多自由空间。他们用一个L型沙发替代了双人床,晚上可以变成舒适的睡眠区(所有床上用品都可以储存在内部抽屉中)。
靠窗的软椅非常适合读书。这里还有许多储物系统——开放式和封闭式架子、边桌以及带有镜子的PAX衣柜区域(如果需要,还可以加装窗帘)。
儿童房不同于之前的选项,宜家专家选择了在儿童房中留出更多自由空间。靠近窗户的地方布置了一个学习和创作区域,也可以在这里阅读喜欢的书籍。
房间另一部分设置了睡眠区域,并将衣物收纳在一个统一衣柜中。顺便说一下,儿童房选择了DROMMARE镜子(墙上)并非偶然——它由柔软塑料制成,完全安全。
浴室和卫生间房间没有像之前那样合并在一起,而是提供了更多的储物空间,甚至在水槽对面找到了洗衣机的位置。
正如您所记得的,在前一种方案中,设计师将洗衣机移至走廊壁龛中;而在宜家的设计中,则在此处设置了一个储藏室。在PAX衣柜系统中,您可以存放衣物以外的其他物品,因此洗衣和清洁所需的全部用品都被收纳在内。
Need a renovation specialist?
Find verified professionals for any repair or construction job. Post your request and get offers from local experts.







