There can be your advertisement
300x150
本周房间:具有环保元素的浴室
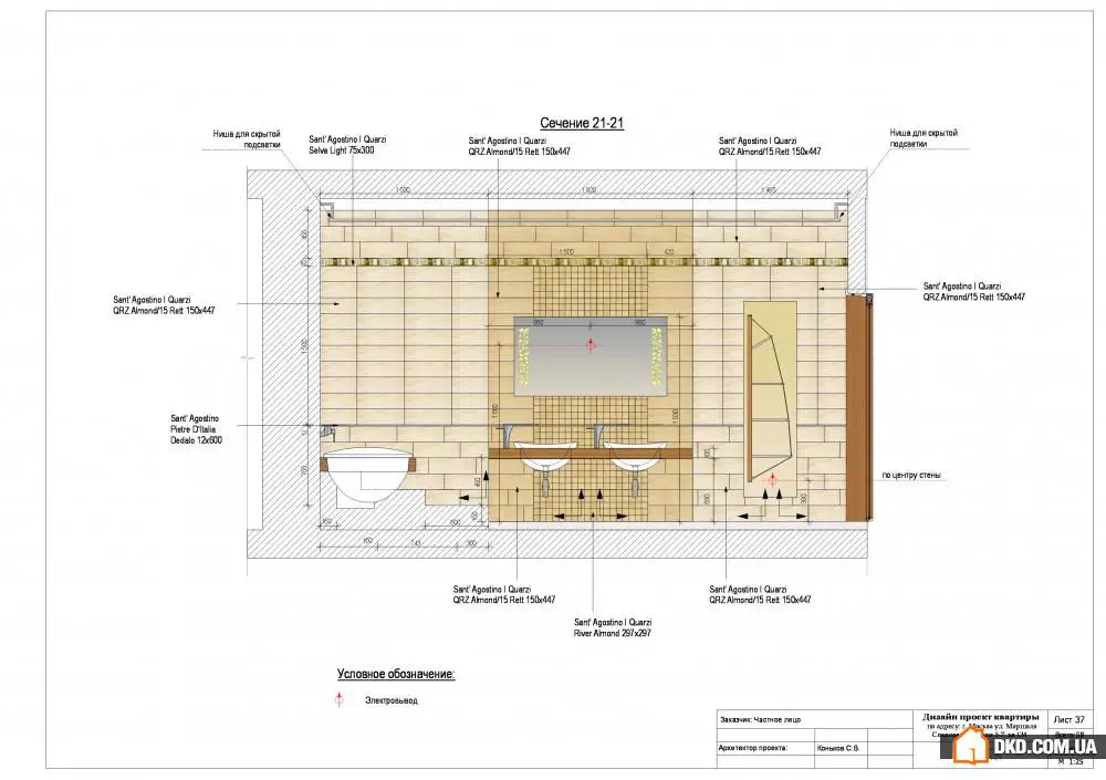
并非总是需要装饰来丰富单调的室内设计。例如,该项目的设计师将一个普通的浴室改造为现代空间,使用了各种饰面格式元素。
米色及其色调是装饰浴室的最佳选择,因为它们营造出宁静的氛围,为休息设定基调。为了确保年轻女性的浴室不会显得无聊或单调,该项目的设计师谢尔盖·科涅夫决定使用各种格式瓷砖和陶瓷。由于不寻常的布局,浴室装修本身成为充满活力的装饰元素。谢尔盖本人向我们讲述了更多关于他的工作内容。










300x150
并非总是需要装饰来丰富单调的室内设计。例如,该项目的设计师将一个普通的浴室改造为现代空间,使用了各种饰面格式元素。
米色及其色调是装饰浴室的最佳选择,因为它们营造出宁静的氛围,为休息设定基调。为了确保年轻女性的浴室不会显得无聊或单调,该项目的设计师谢尔盖·科涅夫决定使用各种格式瓷砖和陶瓷。由于不寻常的布局,浴室装修本身成为充满活力的装饰元素。谢尔盖本人向我们讲述了更多关于他的工作内容。









